• Events
    Events
    • XPO
    • International XPO
    • PWS Masterclass
    • Workshop
  • Editorial
    Editorial
    • All Editorial
    • News
    • Perspectives
    • Reports
  • Property
    Property
    • Buy
    • Sell
    • Rent
    • New Launch
    • Overseas
    • Business Space
    • PN-Valuation
  • Agents
    Events
    • NexLevel Advantage
    • NexLevel Training
    • Our Training
    • PWS Agent
    • Our Leadership
    • Join Us
  • PropNex Friends
  • Investors
  • Support
Account
  • Register as PX Friends
  • PX Friends Login
  • Agent Suite
EN
Language
  • EN
  • 中
  • Exclusive

  • Auction Sale

  • Sub Sale

  • Condo

  • HDB

  • EC

  • Landed

  • Retail

  • Office

  • Shop House

  • Industrial

  • Warehouse

  • Factory

Factory for Sale

List Grid
Newest Lowest Price Highest Price Lowest Floor Area Highest Floor Area

Filter (1)

  • For SALE

Save Search
  • For SALE

1
  • Type
    • For Sale
    • For Rent
  • Type of Sale
    • Exclusive Listings
    • Auction Listings
    • Resale
    • Sub Sale
  • Type of Rental
    • Exclusive Listings
    • Rental
    • Room Rental
  • HDB Type
    • 1-Room/Studio
    • 2A
    • 2I (Improved)
    • 2S (Standard)
    • 3A
    • 3NG (New Generation)
    • 3A (Modified)
    • 3NG (Modified)
    • 3I (Improved)
    • 3I (Modified)
    • 3S (Simplified)
    • 3STD (Standard)
    • 4A
    • 4NG (New Generation)
    • 4S (Simplified)
    • 4I (Improved)
    • 4STD (Standard)
    • 5A
    • 5I
    • 5S
    • Jumbo
    • EA (Exec Apartment)
    • EM (Exec Maisonette)
    • MG (Multi-Generation)
    • Terrace
  • Property Type
    • Condominium
    • Apartment
    • Walk-up
    • Cluster House
  • Property Type
    • Bungalow House
    • Conservation House
    • Corner Terrace
    • Detached House
    • Good Class Bungalow
    • Semi-Detached House
    • Terraced House
    • Town House
    • Cluster House
  • District
    • D01 - Boat Quay / Raffles Place / Marina
    • D02 - Chinatown / Tanjong Pagar
    • D03 - Alexandra / Commonwealth
    • D04 - Sentosa / Harbourfront
    • D05 - Buona Vista / West Coast / Clementi New Town
    • D06 - City Hall / Clarke Quay
    • D07 - Beach Road / Bugis / Rochor
    • D08 - Farrer Park / Serangoon Rd
    • D09 - Orchard / River Valley
    • D10 - Tanglin / Holland / Bukit Timah
    • D11 - Newton / Novena
    • D12 - Balestier / Toa Payoh
    • D13 - Macpherson / Potong Pasir
    • D14 - Eunos / Geylang / Paya Lebar
    • D15 - East Coast / Marine Parade
    • D16 - Bedok / Upper East Coast
    • D17 - Changi Airport / Changi Village
    • D18 - Pasir Ris / Tampines
    • D19 - Hougang / Punggol / Sengkang
    • D20 - Ang Mo Kio / Bishan / Thomson
    • D21 - Clementi Park / Upper Bukit Timah
    • D22 - Boon Lay / Jurong / Tuas
    • D23 - Dairy Farms / Bukit Panjang / Choa Chu Yang
    • D24 - Lim Chu Kang / Tengah
    • D25 - Admiralty / Woodlands
    • D26 - Mandai / Upper Thomson
    • D27 - Sembawang / Yishun
    • D28 - Seletar / Yio Chu Kang
  • HDB Estate
    • Ang Mo Kio
    • Bedok
    • Bishan
    • Bukit Batok
    • Bukit Merah
    • Bukit Panjang
    • Bukit Timah
    • Central Area
    • Choa Chu Kang
    • Clementi
    • Geylang
    • Hougang
    • Jurong East
    • Jurong West
    • Kallang/Whampoa
    • Lim Chu Kang
    • Marine Parade
    • Pasir Ris
    • Punggol
    • Queenstown
    • Sembawang
    • Sengkang
    • Serangoon
    • Tampines
    • Toa Payoh
    • Woodlands
    • Yishun
  • Price Range
    • -
  • Floor Area
    • -
  • Bedroom
    • Studio
    • 1 Bedroom
    • 2 Bedroom
    • 3 Bedroom
    • 4 Bedroom
    • 5+ Bedroom
    • Any
  • Bathroom
    • -
  • Tenure
    • 99-103 years
    • 999 years
    • Freehold
  • Year Completed
    • -
  • Open House
    • Show Only
    • Click here to select dates >
      Your preferred Time
      -
  • Keyword
  • Near MRTs
  • Near Schools
  • Near Shopping Mall

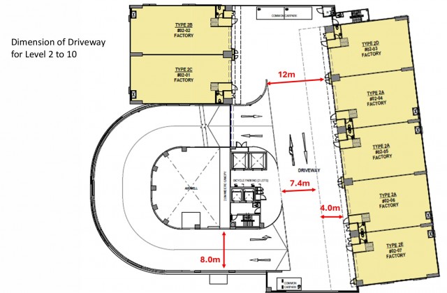
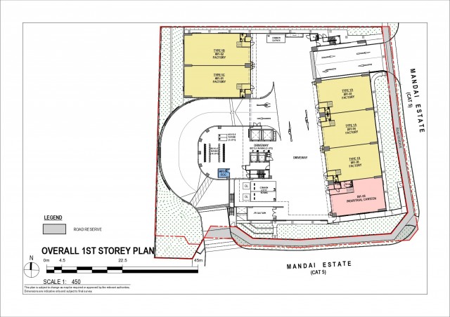
Keystone@Mandai

Shortlist
  • 2c mandai estate - D25
  • Factory / Workshop (B2) for sale!
  • 1,668 sqft

$2,217,000

$1,329 psf

Vincent #R043352J
  • View Detail

Kaki Bukit B2 | 4-storey Terrace | Can apply for dormitory

Shortlist
  • 99 kaki bukit ave 1 - D14
  • Factory / Workshop (B2) for sale!
  • 8,800 sqft

$3,800,000

$432 psf

James Jose Boo #R050956Z
  • View Detail

Wave 9

Shortlist
  • Woodlands Industrial Park E9 - D27
  • Factory / Workshop (B2) for sale!
  • 5,500 sqft

$1,868,888

$340 psf

Jayven Ang #R063222A
  • View Detail

T-Space

Shortlist
  • Tampines North Drive 1 - D18
  • Factory / Workshop (B2) for sale!
  • 2,422 sqft

$900,000

$372 psf

Lisa Seow #R057486H
  • View Detail

Shun Li Industrial Park

Shortlist
  • Kaki Bukit Avenue 1 - D14
  • Factory / Workshop (B2) for sale!
  • 2,335 sqft

$999,000

$428 psf

Laven Loo #R060597F
  • View Detail

Ubi Techpark

Shortlist
  • Ubi Crescent - D14
  • Factory / Workshop (B2) for sale!
  • 990 sqft

$650,000

$657 psf

Jasper Koh #R056772A
  • View Detail

REVV

Shortlist
  • Corporation Drive - D22
  • Factory / Workshop (B2) for sale!
  • 3,380 sqft

$1,650,000

$488 psf

Tan Heng Kee #R058295Z
  • View Detail

Westview Food Factory

Shortlist
  • Tuas Bay Walk - D22
  • Factory / Workshop (B2) for sale!
  • 1,894 sqft

$780,000

$412 psf

Sophia Chai #R014482J
  • View Detail

Carros Centre

Shortlist
  • Jalan Lam Huat - D25
  • Factory / Workshop (B2) for sale!
  • 1,721 sqft

$1,088,000

$632 psf

Martin Yeo #R070045H
  • View Detail

Pantech Business Hub

Shortlist
  • Pandan Loop - D05
  • Factory / Workshop (B2) for sale!
  • 1,356 sqft

$950,000

$701 psf

Perlin Ho #R030265E
  • View Detail

Food XChange @ Admiralty

Shortlist
  • Admiralty Street - D27
  • Factory / Workshop (B2) for sale!
  • 8,869 sqft

$4,700,000

$530 psf

Lisa Wong #R059194J
  • View Detail

Pioneer Point

Shortlist
  • Soon Lee Street - D22
  • Factory / Workshop (B2) for sale!
  • 969 sqft

$350,000

$361 psf

Ssharon Loh #R042575G
  • View Detail

Kb Industrial Building

Shortlist
  • Kaki Bukit Road 1 - D14
  • Factory / Workshop (B2) for sale!
  • 5,048 sqft

$2,150,000

$426 psf

Ng Li Lian #R030769Z
  • View Detail

T-Space

Shortlist
  • Tampines North Drive 1 - D18
  • Factory / Workshop (B2) for sale!
  • 2,196 sqft

$800,000

$364 psf

Lam Raymond #R061018Z
  • View Detail

T99

Shortlist
  • Tuas South Avenue 10 - D22
  • Factory / Workshop (B2) for sale!
  • 7,965 sqft

$1,200,000

$151 psf

Devin Lee #R064430A
  • View Detail

Polaris @ Woodlands

Shortlist
  • Woodlands Avenue 12 - D25
  • Factory / Workshop (B2) for sale!
  • 4,295 sqft

$2,275,000

$530 psf

Able S.K Toh #R067760J
  • View Detail

Polaris @ Woodlands

Shortlist
  • Woodlands Avenue 12 - D25
  • Factory / Workshop (B2) for sale!
  • 1,798 sqft

$1,179,999

$656 psf

Jacq #R063248E
  • View Detail

Synergy @ KB

Shortlist
  • Kaki Bukit Road 4 - D14
  • Factory / Workshop (B2) for sale!
  • 1,302 sqft

$550,000

$422 psf

Sim Boon Hui #R057939H
  • View Detail

E9 Premium

Shortlist
  • Woodlands Industrial Park E9 - D27
  • Factory / Workshop (B2) for sale!
  • 2,755 sqft

$880,000

$319 psf

June Leng #R012861B
  • View Detail

FOOD XCHANGE @ ADMIRALTY

Shortlist
  • ADMIRALTY STREET - D27
  • Factory / Workshop (B2) for sale!
  • 3,882 sqft

$2,500,000

$644 psf

Rachel Hon #R016941F
  • View Detail

38 Woodlands Industrial Park E1

Shortlist
  • D25
  • Factory / Workshop (B2) for sale!
  • 2,996 sqft

$840,000

$280 psf

Ashlyn #R030895E
  • View Detail

The Westcom

Shortlist
  • Tuas South Avenue 6 - D22
  • Factory / Workshop (B2) for sale!
  • 4,252 sqft

$1,718,902

$404 psf

Anne Wu #R061502E
  • View Detail

The Index

Shortlist
  • Tuas South Ave 3 - D22
  • Factory / Workshop (B2) for sale!
  • 11,033 sqft

$3,837,493

$348 psf

Anne Wu #R061502E
  • View Detail

Premier @ Kaki Bukit

Shortlist
  • Kaki Bukit Avenue 4 - D14
  • Factory / Workshop (B2) for sale!
  • 3,078 sqft

$1,700,000

$552 psf

June Leng #R012861B
  • View Detail

FOOD XCHANGE @ ADMIRALTY

Shortlist
  • ADMIRALTY STREET - D27
  • Factory / Workshop (B2) for sale!
  • 3,882 sqft

$2,500,000

$644 psf

Rachel Hon #R016941F
  • View Detail

North Spring Bizhub

Shortlist
  • Yishun industrial Street 1 - D27
  • Factory / Workshop (B2) for sale!
  • 1,507 sqft

$950,000

$630 psf

H.H. Teng #R044324J
  • View Detail

North Spring Bizhub

Shortlist
  • Yishun industrial Street 1 - D27
  • Factory / Workshop (B2) for sale!
  • 11,341 sqft

$6,380,000

$563 psf

H.H. Teng #R044324J
  • View Detail

North Spring Bizhub

Shortlist
  • Yishun Industrial Street 1 - D27
  • Factory / Workshop (B2) for sale!
  • 63,400 sqft

$17,000,000

$268 psf

H.H. Teng #R044324J
  • View Detail

Ark @ KB

Shortlist
  • Kaki Bukit Avenue 6 - D14
  • Factory / Workshop (B2) for sale!
  • 3,466 sqft

$1,020,000

$294 psf

Jeffrey Hun #R048867H
  • View Detail

Ark @ KB

Shortlist
  • Kaki Bukit Avenue 6 - D14
  • Factory / Workshop (B2) for sale!
  • 1,712 sqft

$780,000

$456 psf

Lim Boon Heng #R015541E
  • View Detail

Add Your
New Search

Please signin first
Don't have an account yet? Register

MRT Lines
LRT Lines

Distance away from the selected MRT/LRT:

  • Apply
  • Reset
  • CENTRALISED INSTITUTE
  • JUNIOR COLLEGE
  • MIXED LEVEL
  • PRIMARY
  • SECONDARY

Distance away from the selected school:

  • Apply
  • Reset
  • Central
  • East
  • North
  • North East
  • North West
  • South
  • West
  • Others

Distance away from the selected Shopping mall:

  • Apply
  • Reset

PropNex.com is the leading real estate portal with the most comprehensive and updated property listings and market information for Singapore Property be it residential, commercial or industrial.

A convenient and extensive resource packed with quality visuals and key information to search homes for sale, apartments, executive condos, condos, landed homes and HDBs for buy, sell or rent, you can filter and browse your way to your dream home or the best commercial/industrial office space for your business. You can also make enquiries, and arrange for house-viewing appointments and showflat tours on-the-go through our portal. With the latest property news, market insights, curated real estate content as well as videos, we are always here to help you make informed decisions and navigate the ever-changing local property market with greater ease. Embark on your real estate journey with Singapore’s top property portal today!


Client Services
  • Client Testimonials
  • Consumer Empowerment Seminar
  • Commission Guidelines
  • Calculator
View More
Careers
  • Real Estate Salespersons (RES) Career
  • Real Estate Salespersons (RES) Chapter
  • Training and Development
  • Our PropNex Millionaires
View More
Consultancy Services
  • Investment Sales
  • Valuation
  • Corporate Leasing
  • Collective Sales & Auction
  • GCB and Prestige Landed
  • International Property Marketing
View More

About Us
  • Corporate Profile
  • Milestones
  • Vision, Mission & Values
  • Regional Footprint
  • Awards
  • Corporate Social Responsibility
  • Our Business
  • Press Release
View More
Investor Relations
  • Corporate Information
  • Stock Information
  • Financial Information
  • Publications
  • Newsroom
  • Info Request
View More
Contacts
  • General Enquiry
  • Employment
Quick Links
  • PropNex Foundation
  • Agent Suite
  • PWS
  • Calculator
View More

Copyright © 2021 PropNex Limited. All rights reserved

Privacy Policy | Whistleblowing Policy | Terms of Use

Choose Language

  • English
  • Chinese

Other Regional Offices

Follow PropNex

Follow us on WeChat