New
$1,238,000 ($2,349 psf)
Silat Avenue, 168872, D03
1
1
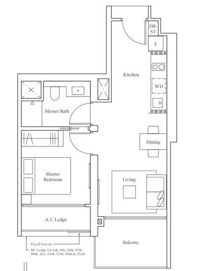
527 sqft (49 sqm) Agent Information
#R045555I
skyseow@propnex.com
+65 87228899
Listing Type
Property Group
Property Type
District
Floor Area
TOP
SALE
Apartment / Condo
Condominium
D03
527
2023
Furnishing
Tenure
Floor
Post Code
Street Name
Fully Furnished
99-year Leasehold
Middle Floor
168872
Silat Avenue
Avenue South Residence 1 Bedroom For Sale!
New 1-Bedroom Listing – Showflat Standard Living!
- Actual unit — beautifully done up with showflat-quality finishes
- Currently tenanted at $3,850/month
(Option to purchase with tenancy or vacant possession)
- Largest 1-bedroom layout at 527 sqft
- Fully furnished — move-in ready condition
- Comes with quality furnishings included in the sale
Contact Sky Seow at 87228899 for more details or to arrange a viewing