New
$3,700,000 ($2,566 psf) [Negotiable]
Amber Gardens, 439957, D15
3
3
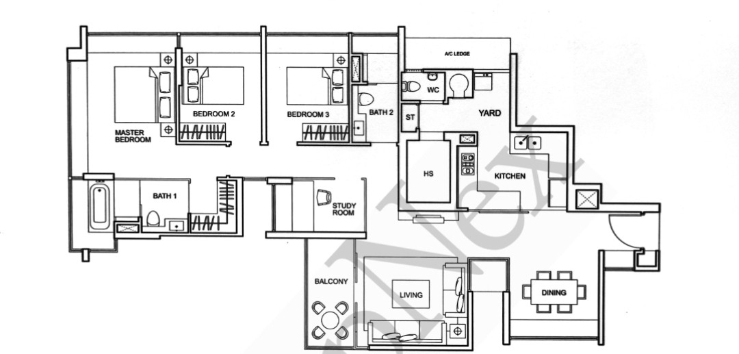
1,442 sqft (134 sqm) Agent Information
#R014614I
JOYYCEGOHREALTY@PROPNEX.COM
+65 97686887
Listing Type
Property Group
Property Type
District
Floor Area
TOP
SALE
Apartment / Condo
Condominium
D15
1442
2010
Furnishing
Tenure
Floor
Post Code
Street Name
Partially Furnished
Freehold
High Floor
439957
Amber Gardens
Rarely Available Unblocked View!! Serious Seller!
NEW LISTING!!
MUST SELL!!
3 + Study
Very High Floor
Good Size 1442sqft
SUPER CONVENIENT
Tg Katong MRT: Barely 3mins Walk
Supermarkets, Meat Collective, Little Farms .... All Mins Walk
SCHOOLS (Within 1km)
Tanjong Katong Primary School
Tanjong Katong Girls' School
Tanjong Katong Secondary School
Chung Cheng High School (Main)
Comprising of four 23-storey residential towers, One Amber is crafted with a variety of landscaping and facilities creating a sense of belonging and a warm conducive living environment.