New

Whitewater

$4,600 ($4 psf) [Negotiable]

  • Pasir Ris Street 72, 518765, D18

  • 3
  • 2
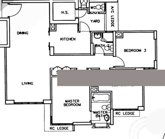
  • 1,130 sqft (105 sqm)

Agent Information

Eric Choy

#R069045E

ERIC.CHOY@PROPNEX.COM

+65 82228903

Property Details

  • Listing Type

  • Property Group

  • Property Type

  • District

  • Floor Area

  • TOP

  • RENT

  • Apartment / Condo

  • Executive Condominium

  • D18

  • 1130

  • 2005

  • Furnishing

  • Tenure

  • Floor

  • Post Code

  • Street Name

  • Unfurnished

  • 99-year Leasehold

  • Penthouse

  • 518765

  • Pasir Ris Street 72

Description

⁠SUPER SPACIOUS & COMFORTABLE: Contact Eric at 8222.8903 to enquire before unit taken!

- Huge Living Room Yard Utility (Storeroom)
- Spacious 3 bedroom with separate helper's quarters
- ⁠High floor, renovated, bright & breezy
- Friendly landlord

• 2 mins walk to Pasir Ris West Plaza (eateries, shops, supermarket, bakery, McDonalds
• Less than 15 mins drive to Changi Airport / Jewel / Changi Business Park / SUTD

Another quality listing by Eric Choy, contact 8222.8903. Fellow cobroking welcomed!

Location